
Denison Texas
Custom Home Floor Plans


Design Services - Custom Floor Plan
Everyone dreams of owning a house and with our Design Services you can start designing the house of your dreams today for only $1 per square foot. Currently our Residential Design services are heavily discounted meaning you can start designing a Custom Floor Plan for your new home for a small fee.
Contact us for a Free Project Consultation to discuss what services we can offer your new project.
Book an appointment with a Virtual Design Consultant and get started with a Design Session today!
Save yourself time and money by hiring a Building Designer to design your home. Use these plans for Construction Estimation and for finding the right Builder or Contractor. You can also use these same plans in order to acquire financial loan approval through your lender or bank.
90 Day New Construction Timeline

Design Your Home
Construction Estimate
Find A Builder
Construction Documents
30+ Days
30+ Days
30+ Days
Floor Plan
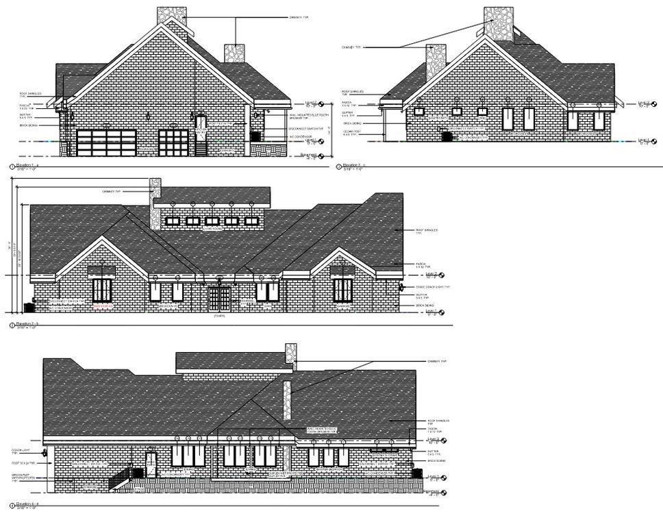
Elevations
Electrical Plan
Site Plan
Doors & Windows
Lights & Outlets
Cabinetry
Building Materials
Paint & Labor
Utilities
Project Manager
Contractor Bids
Foundation Plan
Framing Plan
Plumbing Plan
HVAC Plan
Roof Plan
Code Analysis
Construction Permits
RFI (Request For Information)








