Residential Design Service
A Virtual Design Consultant will work with you to determine what your requirements are for your new home.
They will develop a Program that lists the number of rooms, the room type, the ideal dimensions and any other special requirements such as windows, ceiling fans, or smart devices.
01
Program

Badams Products showcases "The Walker Residence," a custom home designed by Brian Adams.

Badams Products showcases "Project M," a custom home designed by Brian Adams.

Badams Products showcases "Quails Path," a residential second floor addition designed by Brian Adams.

Badams Products showcases "The Walker Residence," a custom home designed by Brian Adams.
A Virtual Design Consultant will work with you to determine the layout of your new home.
They will develop a Floor Plan that suits your needs, while maintaining IBC, IRC, & NFPA code requirements from your local jurisdiction.
02
Floor Plan

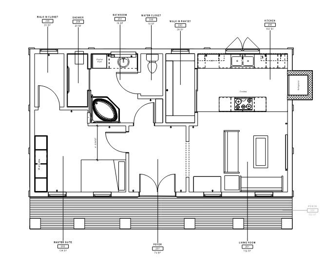
Badams Products showcases a Floor Plan from the "Walker Residence," a custom home designed by Brian Adams.

Badams Products showcases a Floor Plan from the "Saldivar Residence," a custom home designed by Brian Adams.

Badams Products showcases a Floor Plan from the "Lewisville Cottage," a custom home designed by Brian Adams.

Badams Products showcases a Floor Plan from the "Walker Residence," a custom home designed by Brian Adams.
A Virtual Design Consultant will work with you to determine the best style of the house that suits your needs.
Use the gallery on the right to explore the various styles of Architecture. These 3D renderings are included in your Design Package.
03
Elevation

Badams Products showcases the Prairie School style of architecture in this 3D rendering.

Badams Products showcases the Farmhouse style of architecture in this 3D rendering.

Badams Products showcases the Modern style of architecture in this 3D rendering.

Badams Products showcases the Prairie School style of architecture in this 3D rendering.
A Virtual Design Consultant will work with you to determine the best placements for switches, lights, low voltage, and smart devices.
Explore the world of heated floors, automatic lights, wifi access points, security cameras, and more!
04
Electrical

Residential Electrical Drawings showcasing Switched, Lights, Ceiling Fans, Smart Devices, Low Voltage Devices, etc.

Residential Electrical Drawings showcasing Switched, Lights, Ceiling Fans, Smart Devices, Low Voltage Devices, etc.
A Virtual Design Consultant will work with you to develop photo realistic 3D renderings of your new residence!
Examples on the right show how a 2D floor plan is transformed into a full fledged visualization featuring appliances, décor, people, and all the finishing material!
05
3D Rendering

Badams Products showcases a residential kitchen 3D rendering.

Badams Products showcases a residential bathroom 3D rendering.

Badams Products showcases a residential kitchen 3D rendering.

Badams Products showcases a residential kitchen 3D rendering.