
Badams Products showcases "The Olive House," a commercial project.

Badams Products showcases "The Olive House" concept art in Revit BIM software.

Badams Products showcases "The Olive House" concept art in watercolors.

Badams Products showcases "The Olive House," a commercial project.
The Olive House (2023)
The Olive House is located near the Serra d'Aire e Candeerios region in Spain, just North of Lisbon. The area is renowned for its olive trees and limestone rocks.
The Olive House "Building Programme" included the following design elements:
-
x2 En-Suite Bedrooms with Double Beds
-
x2 En-Suite Bedrooms with Twin Beds
-
A Meditation Room / Prayer Space
-
A Cellar of at least 50m^2
-
A Kitchen for Guests
-
A Dining Room
-
Storage Space for Guests & Staff
-
Optional landscape features

3D Rendering
Front Exterior
Showcased is a 3D Rendering of the front exterior for the Olive House commercial building located in Spain; next to Asteriscos Leiria. The design and rendering is done using Revit 3D Building Information Modeling software.
3D Rendering
Back Exterior
Showcased is a 3D Rendering of the back exterior for the Olive House commercial building. The design includes a separated luxury suite on the First Floor for guests and includes access to a private pool overlooking the country side.

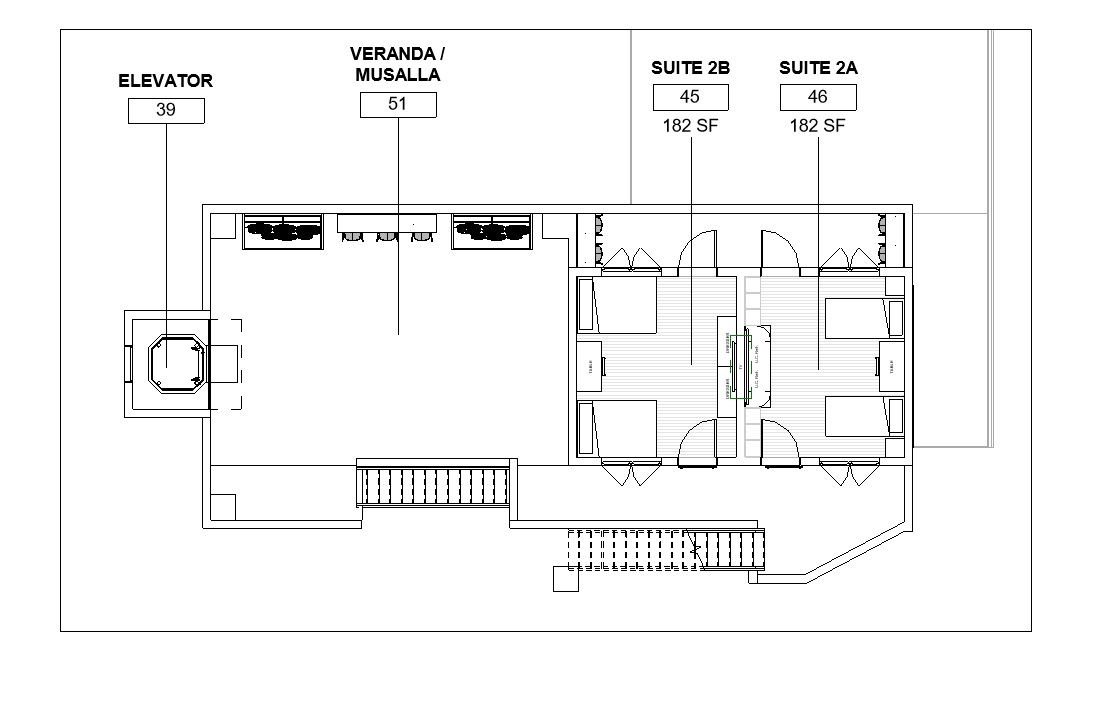
Floor Plan
Site Plan Elements
Showcased is an excerpt of the First Floor with Site Plan elements included. Parking for 6 guests is available. Handicap access is included via a chair lift. A water feature is located on the East side of the property, and a private pool is featured in the back.
3D Camera View
Second Floor Guest Suite
See inside the Second Floor Guest Suite of The Olive House with this 3D Rendering Camera View done using Revit Building Information Modeling Software.

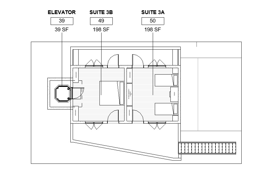
3D Camera View
Third Floor Guest Suite
See inside the Third Floor Guest Suite of The Olive House with this 3D Rendering Camera View done using Revit Building Information Modeling Software.

3D Camera View
Third Floor Guest Suite
This is your Project description. Provide a brief summary to help visitors understand the context and background of your work. Click on "Edit Text" or double click on the text box to start.




