
Badams Products showcases "The Icelandic Brewery," a commercial building designed by Brian Adams.

Badams Products showcases "The Icelandic Brewery," a commercial building designed by Brian Adams.

Badams Products showcases "The Icelandic Brewery," a commercial building designed by Brian Adams.

Badams Products showcases "The Icelandic Brewery," a commercial building designed by Brian Adams.
Icelandic Brewery (2023)
The Icelandic Brewery is a commercial property located in the Mývatn region of Iceland, which is renowned for its breathtaking scenery that features an abundance of natural wonders and diverse wildlife. Nearby is the Sel Hotel, Lake Mývatn, and the Skútustaðagígar craters.
The Icelandic Brewery "Building Programme" included the following design elements:
-
Brewery
-
Café
-
Snack Bar with Seating
-
Souvenir Shop
-
Terraces
-
Beer Spa
-
Private Beer Bath
-
Shared Beer Bath
-
Showers
-
Changing Room
-
Beer Tasting Bar
-
Treatment Rooms
-

3D Rendering
Front Exterior
Showcased is a 3D Rendering of the front exterior for the Icelandic Brewery commercial building located in Northern Iceland; next to Lake Mývatn. The second floor features an outdoor dining experience overlooking the lake.

3D Rendering
Back Exterior
Showcased is a 3D Rendering of the back exterior for the Icelandic Brewery commercial building located in Northern Iceland. The back features a Snack and Beer Terrace, which houses a tasting area that can be easily privatized for parties.

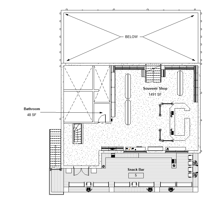
Floor Plan
Site Plan Elements
Showcased is the site location for the Icelandic Brewery project. The bottom right is the Proposed new building, and the top left is the existing Sel Hotel. The famous Lake Mývatn is North on the roadway. All parking to remain.
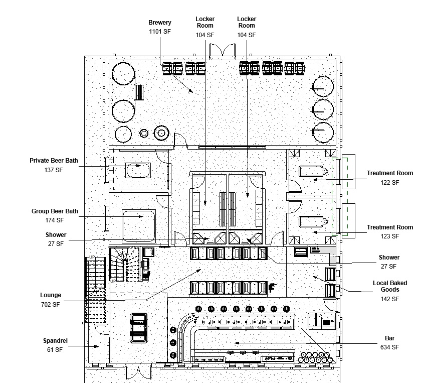
Floor Plan
First Floor
The First Floor of the Icelandic Brewery features a Bar, a Lounge area for inside dining, a public and private Beer Spa, two Changing Rooms with Showers, two Treatment Rooms, the Brewery and an area for local Icelandic Baked Goods.
Additional storage provided via the Spandrel.
3D Camera View
Interior / Exterior
See inside the Icelandic Brewery commercial building with this 3D Rendering Camera View done using Revit Building Information Modeling Software.

3D Camera View
Third Floor Guest Suite
This is your Project description. Provide a brief summary to help visitors understand the context and background of your work. Click on "Edit Text" or double click on the text box to start.













